新築戸建て萱田町新築分譲住宅全4棟D号棟
- 物件更新日 :2026/04/17
- 物件番号 : 00076648
所在地 : 八千代市萱田町
東葉高速鉄道 八千代中央駅 徒歩13分
販売価格:2,990 万円(税込)
画像27点
この物件のパノラマ3D動画
所在地 : 八千代市萱田町
東葉高速鉄道 八千代中央駅 徒歩13分
販売価格:2,990 万円(税込)
画像27点
この物件のパノラマ3D動画





※出来る限り詳細な調査を行っておりますが実際の距離・徒歩所要時間と異なる場合がございますが、ご了承ください。
お支払い例この物件を購入した場合の月々の支払い価格の一例です。
※元利均等方式 金利0.775%の場合 ※返済年数35年として算出しています。
=
| 物件名 | 萱田町新築分譲住宅全4棟D号棟 | ||
|---|---|---|---|
| 所在地 | 八千代市萱田町 | ||
| 交通 | 東葉高速鉄道「八千代中央」駅徒歩13分 | ||
| 交通2 | 東葉高速鉄道「八千代中央」駅徒歩16分 | ||
| 交通3 | 京成本線「八千代台」駅徒歩19分 | ||
| 総戸数 | 販売戸数 | ||
| 土地面積 |
公簿 108.69m² |
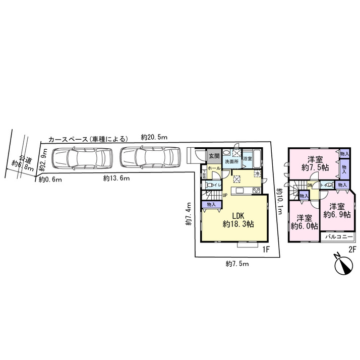
建物面積 | 89.73m² |
| 間取り | 3LDK | 建物構造 | 木造2階建て |
| 築年月 | 2025年11月築 | 間取り詳細 | |
| 現況 | 完成済 | 引渡時期 | 即時 |
| 土地権利 | 所有権 | 借地料 | |
| 私道面積 | なし | セットバック面積 | なし |
| 都市計画 | 市街化区域 | 地目 | 宅地 |
| 用途地域1 | 第一種低層住居専用地域 | 用途地域2 | |
| 建ぺい率1/容積率1 | 60%/150% | 建ぺい率2/容積率2 | -/- |
| 建築確認番号 | HPA-25-09212-1 | 開発許可番号 | |
| 駐車場 | 2台可(車種による) | 取引態様 | 媒介 |
| 不適合接道 | 接道状況 | 一方 | |
| 町会費 | その他費用 | ||
| 学校区 |
小学校区:八千代市立大和田小学校 距離:850m 中学校区:八千代市立大和田中学校 距離:670m |
||
| 接道詳細 | 北西7m公道に2.9m接道 | ||
| 法令上の制限 | ■文化財保護法(川崎山遺跡包蔵地内) | ||
| 設備 | 都市ガス、公営水道、排水(下水) | ||
| 備考 |
■土地面積:108.68㎡(路地状部分約37%含む) |
||